LA GRANGE
SUPERFICIE : 80 m2
LA GRANGE

SUPERFICIE : 80 m2
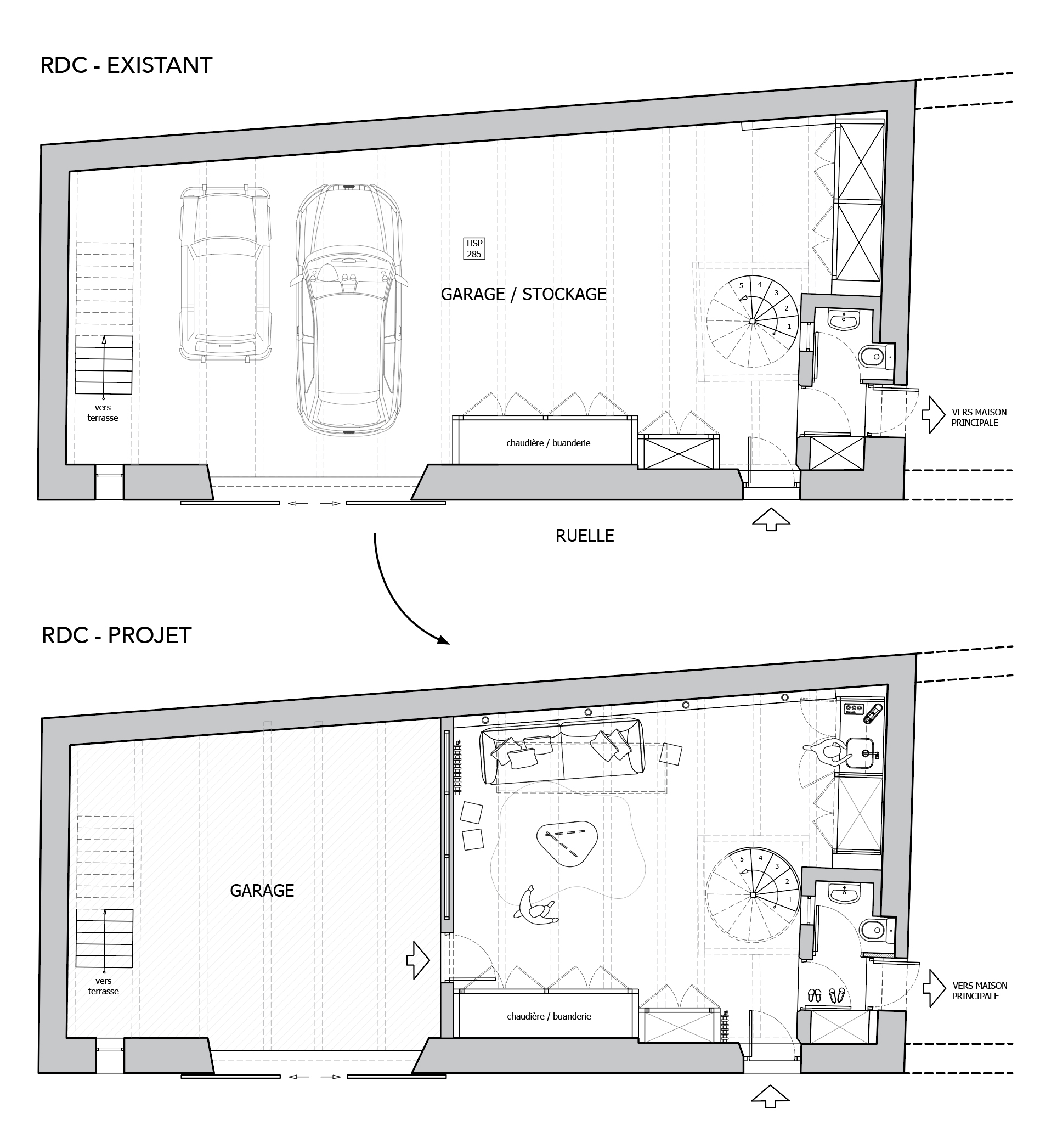
Notre mission : la rénovation d’une grange dans un esprit « grange contemporaine wabi-sabi ».
Cette ancienne grange, proche de St Germain en Laye, ne demandait qu’à se muer en espace habité. Nous l’avons transformée en duplex avec terrasse, qui sert désormais d’atelier d’artiste et d’appartement d’invité.
Faire entrer la lumière
Au rez-de-chaussée, le challenge était de faire entrer la lumière naturelle dans la pièce vie. Pour cela, nous sommes allées la chercher au grenier en installant un plancher en verre. La lumière descend maintenant doucement à travers les poutres, que nous avons laissé filer sous le vitrage, dans un esprit plus brut.
Le joli mur en pierre d’origine est mieux mis en valeur, éclairé par les rayons du soleil, ou par les spots au sol. Il se prolonge jusque dans la mini cuisine d’appoint dissimulée derrière des portes persiennes. L’espace est volontairement peu meublé, pour pouvoir être aménagé selon les besoins du moment.
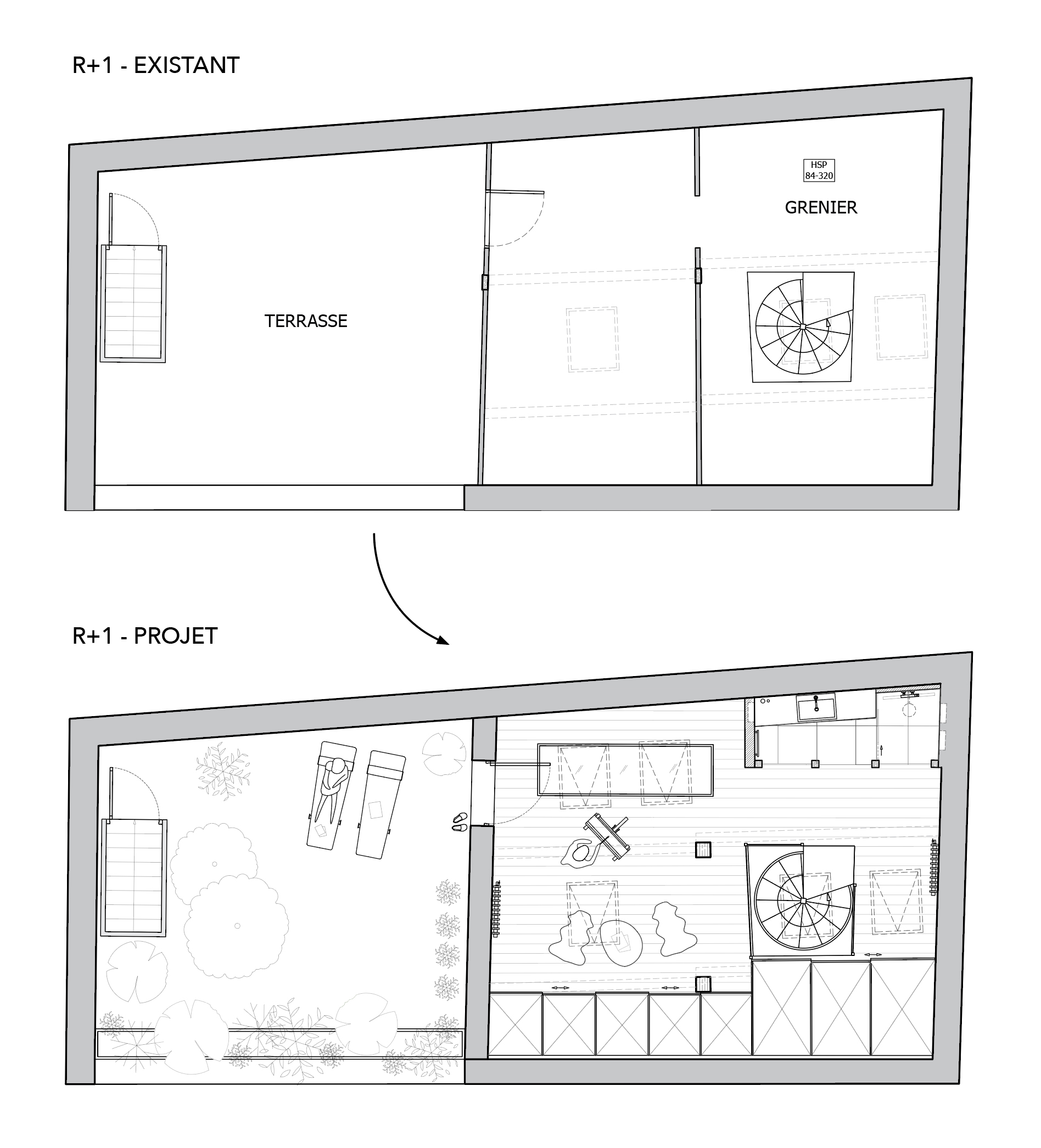
Aménager le grenier
Au grenier, tout était à faire, de l’isolation à l’aménagement. Les nouvelles ouvertures en toiture et sur la terrasse baignent l’espace de lumière, jusqu’au rez-de-chaussée. Le mur en pierre, jointé à la chaux, a retrouvé du cachet et vient dialoguer avec le bois, le verre et le métal. L’espace décloisonné accueille une salle d’eau sous pente, en second jour. Toute vitrée, elle ne mange pas l’espace et se fond dans le décor.
Voilà une grange rénovée faisant la part belle au bois, à la pierre et au verre, dans un esprit rustique minimaliste contemporain !





















































