APPARTEMENT ROUSSEAU
SUPERFICIE : 42 m2
APPARTEMENT ROUSSEAU

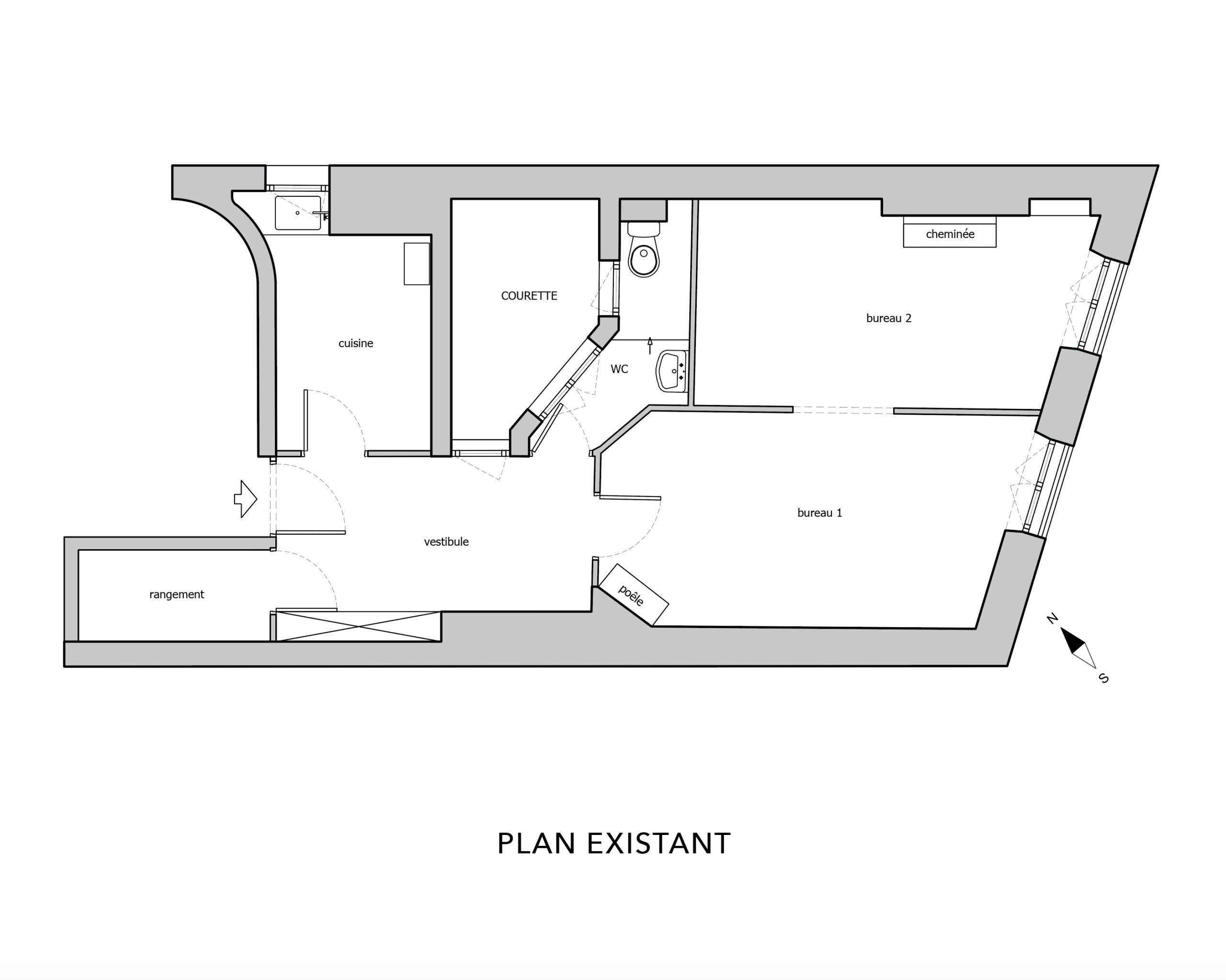
Voici une jolie rénovation pour ce petit appartement haussmannien de 42 m2 situé au coeur de Paris.
Mission
Issu de la division d’un plus grand et utilisé comme bureau depuis des années, il a demandé de l’imagination pour être transformé en pied-à-terre parisien alliant charme et confort.
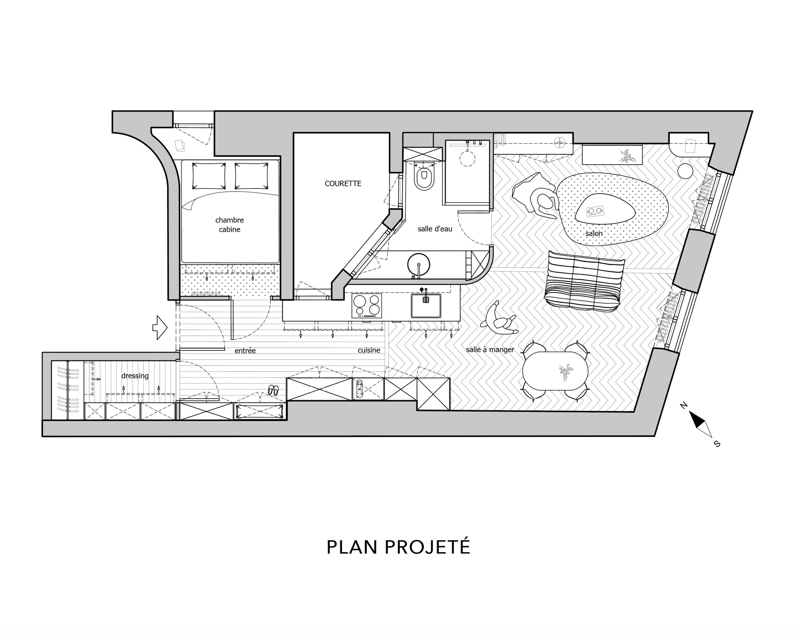
Tout était à (re)faire ! Le challenge était de restructurer l’espace tout en s’accommodant des contraintes techniques et en mettant en valeur le charme haussmannien. Nous avons entièrement revu le plan de façon à créer un bel espace fluide doté de toutes les fonctions : une vraie entrée, une cuisine spacieuse, une pièce de vie lumineuse, une salle de bain avec une grande douche et un coin nuit indépendant avec un vrai dressing.
Parti pris
Le projet se développe autour d’une « boite » dessinée au centre de l’appartement. Elle abrite en toute discrétion la salle de bain et sert d’appui à la cuisine. Avec sa cloison courbe, la boite laisse glisser la lumière. Puis, avec son plafond abaissé, elle laisse filer les jolies moulures des corniches arrondies d’origine. Enfin, avec son revêtement en relief plissé, elle vient créer un dialogue esthétique entre ancien et contemporain.
Réalisation
Totalement optimisé grâce aux agencements 100% sur mesure, l’espace est sublimé par le choix des matériaux. Le parquet en point de Hongrie a retrouvé son éclat, tout comme les moulures, et s’accompagne de matières texturées et matériaux bruts invitant au toucher : brique contemporaine, carrelage effet papier froissé, luminaires en papier, plan de travail en céramique veloutée, placages en noyer, robinetterie aux reflets cuivrés…
Les pièces de mobilier sont rares mais choisies avec attention pour leur lignes fluides et intemporelles. Côté salon : une banquette Togo retapissée vert eucalyptus et une table basse dessinée sur mesure par notre studio. Côté salle à manger : une table ronde tulipe assortie de chaises Cherner contrastent joliment avec le caractère du lieu.
Enfin, les maitre-mots de cette rénovation clé en main : minimalisme, lignes épurées, dialogue des formes et des matières, dialogue entre ancien et contemporain.

































































